The Roman Legionary Camp and Early Byzantine Town of Novae
(Moesia Inferior/Moesia Secunda) after Sixty Five Years of Research11. The full versio (…)
Andrzej B. BiernackiAdam Mickiewicz University, Centre Expedition Novae (PL)
Elena KleninaAdam Mickiewicz University, Centre Expedition Novae (PL)
The Roman legionary camp and Early Byzantine town of Novae, located in Bulgaria, have been excavated since 1960 by Polish and Bulgarian teams. Initially focused on fortifications, research expanded to uncover a major Christian complex, including an episcopal basilica. Key discoveries include a marble ambo and a sculpted sigma-shaped mensa. Excavations revealed six architectural phases spanning centuries. The site also features some of the largest legionary baths on the Danube. Interdisciplinary studies examined diet, materials, and environmental data. The current team, led by Professor Elena Klenina, continues research and heritage development. Significant conservation work is funded by the EU. Novae is now a major archaeological landmark in Eastern Europe.
Le camp légionnaire romain et la ville byzantine de Novae, situés en Bulgarie, ont été fouillés depuis 1960 par des équipes polonaises et bulgares. Initialement centrées sur les fortifications, les recherches se sont étendues à la basilique épiscopale, révélant un complexe chrétien majeur. De nombreuses découvertes marquantes ont été faites, dont une chaire en marbre et une mensa sculptée. Le site a révélé une stratification architecturale sur plusieurs siècles, notamment six phases de construction. Les fouilles ont aussi mis en lumière des thermes légionnaires parmi les plus vastes du Danube. Des études interdisciplinaires ont porté sur l’alimentation, l’environnement et les matériaux. L’équipe actuelle, dirigée par la professeure Elena Klenina, poursuit l’étude et la valorisation du site. L’UE finance des travaux de conservation importants. Novae constitue aujourd’hui une référence archéologique majeure en Europe orientale.
The former Roman legionary camp and the Early-Byzantine town of Novae is located 4 km east of the present city of Svishtov (northern Bulgaria, the Roman province of Moesia), on a steep cliff on the bank of the Danube (fig. 1). In the spring of 1960, this area was selected as the site of long-term Polish-Bulgarian archaeological studies following a scrutiny of written sources and surface finds by two Polish scholars: Prof. Kazimierz Majewski of the University of Warsaw and Associate Prof. Stefan Parnicki-Pudełko, D.Sc., of the Adam Mickiewicz University of Poznań, and the Bulgarian Prof. Dimităr Dimitrov (fig. 2, 3). Following an agreement between the University of Warsaw and the National Institute of Archaeology and the National Archaeological Museum of the Bulgarian Academy of Sciences, the archaeological expedition headed by Prof. Majewski began its first season of exploration at the end of September 196022. Hilczerówna Z., (…) (fig. 4).

Phot. by M. Pisz.

Phot. T. Biniewski.

Phot. Z. Czarnecki.

Phot. T. Biniewski.
From the very beginning of the project, Prof. Parnicki-Pudełko participated in the work as deputy head. At the moment of the commencement of the archaeological exploration, hardly any remnants of the ancient town were visible on the ground. Professors Majewski and Parnicki-Pudełko decided that prior to a systematic and long-term investigation of the buried ancient town, the expedition must determine the location of the defensive walls, which constituted the outline of the city, including the gates and other fortifications. During the first ten years of the project, Prof. Parnicki-Pudełko focused on topographic studies and the identification of the defensive walls, towers and gates, while the head of the expedition, Prof. Majewski, explored the residential north-western section of Novae.
The principal Bulgarian partner, Prof. D. Dimitrov, began his participation in the exploration of Novae in 1961 as the head of the expedition of the National Institute of Archaeology of the Bulgarian Academy of Sciences33. Dimitrov D., Či (…) . It was at the same time that the presumed territory of the ancient town of Novae was divided into two sectors: the eastern one in charge of Bulgarian scholars and the western one investigated by the Poles. Professors Majewski and Parnicki-Pudełko with their scholarly team published interim reports of the work of their expeditions in the annual of the Institute of the History of Material Culture of the Polish Academy of Sciences Archeologia and in the periodical Izvěstija na Archeologičeskija Institut of the Bulgarian Academy of Sciences, while the Bulgarian expeditions under Prof. Dimitrov rendered their own accounts of their studies (fig. 5).

From the left: assistant professor Ludwika Press, dr Bohdan Sultov, prof. Dymitr Dimitrov, dr Marija Čičikova, dr Violetta Bożilova.
Phot. T. Biniewski.
In accordance with a decision by the Polish Ministry of Education and Science, in 1970 Prof. Stefan Parnicki-Pudełko established an independent Archaeological Expedition of the Adam Mickiewicz University of Poznań to Novae44. Biernacki A. B. (…) . From that moment, the expeditions of the two Polish universities of Warsaw and Poland worked interchangeably, on a biannual basis, although in close cooperation. The exploration by the Poznań expedition focused on the three gates in the defensive walls of Novae (the western, the southern and the northern)55. Parnicki-Pudełk (…) (fig. 6). At the end of the season of 1970, Prof. Parnicki-Pudełko ordered an excavation of the area of 65 sq. m at the presumed intersection of the main streets of the town in order to expose the ancient forum.
In the excavation season of 1974, Prof. Parnicki-Pudełko chose to focus the exploration on Section X, at the presumed location of the forum66. Biernacki A. B. (…) .

Phot. T. Biniewski.
A further judicious choice by Prof. Parnicki-Pudełko, made in 1978 and 1980, was to turn the expedition into a fully interdisciplinary project; in the latter season, the narthex of the episcopal basilica and two structures annexed to its shorter sides were discovered. The total length of the narthex and the side structures is as much as 54.00 m77. Parnicki-Pudełk (…) (fig. 7). After another dozen seasons, it was established that the basilica had been a part of a large multifunctional Early-Christian complex of the bishopric of Novae. It was also in the season of 1980 that a very large corpus of marble architectural elements and details decorating the interior of the basilica was discovered in its eastern part, including pieces of ornate marble side panels with attached columns and a big fragment of the balcony of the unique ambo from the nave, sited exactly on the central East–West axis of the basilica. The ambo from Novae remains among the best preserved early-Christian relics of the Constantinopolitan type in the Balkan Peninsula88. Biernacki A. B. (…) (fig. 8). A specialist spectral-and-isotopic analysis of the material by Keith Matthews of the British Museum Research Laboratory established that the marble of the ambo had come from a quarry on Proconnesus (Marmara Island, Turkey)99. Matthews K., “R (…) .

Phot. M. Pisz.

Reconstruction by A. B. Biernacki.
In the years 1970–1988, based on the results of the scholarly and research work of the expedition of the Adam Mickiewicz University to Novae, Prof. Parnicki-Pudełko organized a team of young specialists in archaeology, history, architecture, history of the arts, ancient languages, geology, zoology and chemistry. He summarized his exploration of Novae in two monographs on the fortifications of the town and on the episcopal basilica1010. Parnicki-Pudełk (…) .
On Prof. Parnicki-Pudełko’s recommendation, the present writer, Dr. Andrzej B. Biernacki, the Professor’s student and long-term assistant, was appointed the Head of the International Interdisciplinary Expedition of the Adam Mickiewicz University “Novae” in 1990. The first season of excavation work under his supervision continued the previous approaches to the exploration of the ancient town.
As the expedition began to pursue new research aims, the architect Dr. Stanisław Medeksza, D.Sc., became its permanent member again after a pause of sixteen years1111. Biernacki A. B. (…) . In the present writer’s opinion as the head of the project, this was a major development, opening new vistas of spatial and architectural studies of the early-Christian basilicas and the episcopal residence in Novae. Another consequential decision was to conduct the research every year rather than biannually as before. Obviously, this increased the intensity of the excavation work, and also accelerated the rate of the office studies of the various movable archaeological sources. The team of the expedition necessarily expanded, and the scope of its interdisciplinary work broadened.
Upon a close scrutiny of the results of the previous exploration of the basilicas and the episcopal residence, the decision was taken to focus future work on the investigation of the complex of the episcopal baths and the underlying interiors of the earlier large legionary baths. Additionally, excavation and examination of the presumed structures directly south of the episcopal basilica started. Now, after many years, it is evident that this part of the project constituted a breakthrough in the exploration of Novae.
The financing of the excavation seasons of the expedition substantially increased after 1994. An early result of this improvement was the publication of the first volume in the new series Novae. Studies and Materials edited by A. B. Biernacki1212. Biernacki A. B. (…) .
The increased financial resources made it possible to initiate extensive archaeological exploration of the area directly south of the Early-Christian episcopal basilica. This decision was based on a careful consideration of the previous results of the spatial and architectural studies, a scrutiny of movable finds and a comparative study of other Early-Christian episcopal complexes.
In 1997 Elena Klenina, an archaeologist and historian, at the time a research worker at the National Reserve “Chersonesus Taurica” (Sevastopol, Crimea, Ukraine) joined the scholarly team of the Adam Mickiewicz University. Beside taking part in the excavation activity, she was in charge of an extensive description and study of ceramic vessels from Novae1313. Klenina E., “So (…) . Since 2017, dr Elena Klenina has been leading the Head of the International Interdisciplinary Archaeological Expedition AMU “Novae”. In 2020, she obtained her doctor habilitatus degree. At present, dr hab. Elena Klenina is an Associate Professor of the Adam Mickiewicz University in Poznań and specializing in classical archaeology and the ancient history.
A major and highly spectacular achievement of the expedition was the discovery of a marble sigma-shaped mensa in an exceptionally good condition of preservation in 1997. The item had been made at the end of the 4th century of Docimium marble in a workshop in Asia Minor or Constantinople. It had been used at the beginning of the 5th century A.D. in a room in the southern part of the episcopal basilica in Novae. In 2000–2003, it underwent extensive maintenance and restoration work in Poznań. More than 155 fragments have been found, which upon assembly make up more than two thirds of the original item. It has now been established that the width of the base of the mensa was 127 cm, and its height 137 cm (fig. 9). The rim of its upper surface is decorated with relief stripes 0.115 m wide showing a wide variety of scenes: fights of wild animals (between a bear and a horse, a bear and a griffin, a lion and a bull, and a lioness and a unicorn), the hunting of a boar by a man and dogs and symbolic images featuring tritons, a griffin, Eros carried by a dolphin and the goddess Tyche1414. Biernacki A. B. (…) .

Phot. A. B. Biernacki.
The teams of the expeditions after the year 2000, headed by Dr. Andrzej B. Biernacki, included specialists in at least eight fields: archaeology, history, art history, architecture, geology, archaeozoology, numismatics, and Greek and Latin epigraphy. Archaeological research focused on the various structures south of the episcopal basilica. These turned out to constitute a row of rooms located along the East–West axis. Two rooms unearthed in two consecutive years contained several rows of recycled stone blocks and architectural details, found in situ and serving as supports of wooden beams, which in turn had held the wooden floorboards1515. Biernacki A. B. (…) (fig. 10). Immediately south-east of one of these rooms, the remnants of an oblong kitchen stove were encountered, of a type known from other legionary camps, where it was used for cooking for a large number of people. The archaeozoologists participating in the expedition in that season examined the several thousand animal bones found in a small room west of the stove: These were mainly pig bones with clear signs of boiling, and the sizes of the pieces and the way in which they had been cut indicated that food had been cooked for a large number of consumers1616. Makowiecki D., (…) . The late-Roman episcopal complex apparently featured a communal mess.

Phot. E. Klenina.
Another interdisciplinary specialist, a geologist and petrographer, continued his work on determining the origin of the limestone of the architectural details and the spectral-and-isotopic analyses of marble. The latter study established that the late-Roman architectural elements and details, sculptures and bas-reliefs from Novae were made of marble from the quarries on Proconnesus and in Docimium (both in present-day Turkey)1717. Skoczylas J., “ (…) . Proconnesus had supplied architectural details (semi-capitals and the ambo) to the early-Christian episcopal basilica. This provides the final solution of the issue of the origin and distribution of these items in Novae and, to a degree, in the province of Moesia Inferior. Let us emphasize that this was the first analysis of this type of marble from Ancient settlements in the Roman provinces on the Lower Danube.
In 2001, Elena Klenina, at the time a research worker at the National Reserve “Chersonesus Taurica,” commissioned a highly specialist analysis of the DNA of a fragment of bone found several years earlier in a reliquary discovered in situ in the minor basilica of Novae, made by physicians and anthropologists of the Bureau of Forensic Medical Studies of the Autonomous Republic of Crimea, Division of Forensic Medical Criminology in Simferopol (Ukraine)1818. Ponomarev D., S (…) . The surprising conclusion was that the alleged relic was in fact an ancient forgery from the 6th c., made of a bird’s bone.
In the years 2003–2006, the expedition of the Adam Mickiewicz University of Poznań headed by Dr. A. B. Biernacki carried out the scholarly-and-research project 2 H01G 082 25 “The Bishopric of Novae (Moesia Secunda): History, Architecture, Lifestyle,” financed by the Science Research Council of the Ministry of Science and Higher Education of the Republic of Poland. A report of the project was published as a two-volume monograph1919. Biernacki A. B. (…) .
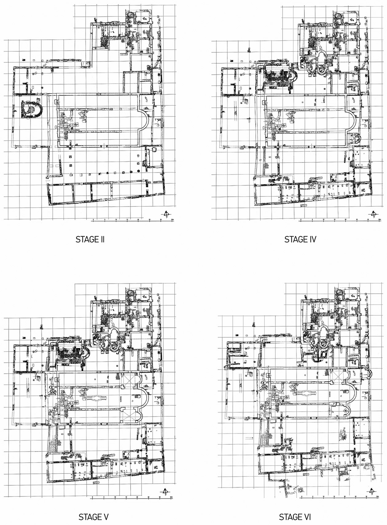
The structures of the bishopric of Novae were erected in the area of the former Roman camp, in an insula which previously had been the site of the extended complex of the large legionary baths. Six chronological phases of the construction and reconstruction have been identified (fig. 11).

Developed by A. B. Biernacki, R. Czerner, E. Klenina, St. Medeksza.
Phase I: late 4th and the first quarter of the 5th century: The construction of the basilica with its narthex and atrium, the entrance structure, the episcopal residence and the complex of the ptochotropheum (fig. 12).

Phot. M. Pisz.
Phase II: second half of the 5th century: The construction of the detached building of the baptistery (fig. 13).

Phot. A. B. Biernacki
Phase III: 5th/6th century (between the earthquakes of 488 and 518): The construction of the martyrium at the basilica and of the private baths at the episcopal residence; the demolition of the baptistery.
Phase IV: first half of the 6th century (after the earthquake of 518): The construction of another, smaller basilica (the basilica minor) (fig. 14); a reconstruction of the complex of the ptochotropheum.

Phot. E. Klenina.
Phase V: first half of the 6th century (between the earthquakes 518 and 557): A reconstruction of the eastern section and the narthex of the large basilica; the demolition of the martyrium.
Phase VI: third quarter of the 6th century (after the earthquake of 557): The construction of a baptistery inside the large basilica, the destruction of the basilica minor, the demolition of most structures of the ptochotropheum.
The complex of the large legionary baths ceased to be used and was destroyed during the wars with the foederati between 376 and 382. The earliest mention of a bishop of Novae in the written sources comes from the early 5th c. The bishopric was apparently established between 430 and 449, and archaeological material suggests that its structures started to be built in the first quarter of the 5th c. After some fifty years of disuse, the remnants of the earlier Roman baths must have been so badly preserved and obliterated at that time that the Byzantine builders hardly used their walls or foundations when erecting the new structures, with the exception of the buildings in the northern part of the insula: the episcopal residence and its baths, and the entrance section. The original layout of the complex of the ptochotropheum had also disappeared by that time due to abandonment. The early structures may have been further damaged by the earthquake of 5572020. Biernacki A. B. (…) (fig. 15).

Development A. B. Biernacki, B.Biernacki.
In the years 2008–2012, the expedition of the Adam Mickiewicz University of Poznań headed by Dr. A. B. Biernacki carried out the scholarly-and-research project “The Large Legionary Baths of Novae (Moesia Inferior), 2nd–4th Cent.: Architecture, Infrastructure, Lifestyle.” The project continued the previous one, as the investigated complex, apparently constructed in several phases, was located under the bishopric.
Excavation activity was undertaken in the complex of the large legionary baths, of an area initially estimated at some 6500 sq. m, operating from the early 2nd c. to app. 380 (fig. 16, 17). In the southern part, several halls were unearthed, each of a surface of more than 200 sq. m. One of these had housed a large sigma-shaped swimming pool of the diameter of 7.80 m, discovered in a very good condition of preservation. Later estimates calculated the size of the complex as a whole insula of the area of some 7500 sq. m, which would make the legionary baths of Novae the largest discovered facility of this type in the Roman provinces on the Central and Lower Danube2121. Biernacki A. B. (…) .

Development A. Jasiewicz, M. Margraf.

Phot. P. Namiota.
Further exploration revealed other structures of the complex of the baths. A hall inside it, of the area of app. 270 sq. m, has a barrel vault roof. To reduce the weight, the ribs of the vault were made of ceramic pipes bound with lime mortar. The floor and walls in the hall were heated by a hypocaust system (fig. 17, 18). After two seasons’ exploration of the southern part, the southern gable wall of the complex was unearthed and identified. This eventually established the total area of the baths at the impressive figure of 7500 sq. m, and significantly contributed to a new spatial reconstruction of the camp.

Phot. P. Namiota.
Following earlier interdisciplinary studies by archaeologists, architects and geologists, a possible site of a latrine was indicated and the facility, of the dimensions of 6.40 × 5.35 m, was actually unearthed in 2010 (fig. 19). A calculation of the size of a single seat indicates that it could accommodate some twenty users2222. Biernacki A. B. (…) .

Phot. A. B. Biernacki.
Based on the horizontal layout and on architectural cross-sections of the complex of the legionary baths, an area was selected in its south-western part for further study with the view to discover the western boundary of the facility and determining in more detail the functions of its various interiors. The subsequent excavation work revealed a structure unique in terms of both its design and its condition of preservation: a section of a cryptoporticus of the length of 8.40 m and the width of 2.39 m (fig. 20). Preserved are not only the walls, but also portions of its barrel vault roof of the original maximum height of app. 3.00 m. Each wall of the cryptoporticus features three rectangular ventilating openings. The cryptoporticus provided passage for the attendants to the praefurnium as well as for the carrying of firewood. It was built during the expansion work on the legionary baths at the turn of the 2nd and 3rd c.2323. Biernacki A. B. (…) .

Phot. A. B. Biernacki.
Built in the times of Hadrian and Antoninus Pius, the legionary baths in Novae may have constituted the emperors’ reward to the soldiers of the Legio I Italica for their courage during the wars with Dacians; thence, the size of the facility, its architectural design and layout exceeded the standards of a Roman legionary camp.
To illustrate the scope of the interdisciplinary office studies complementing the findings of excavation work, let us mention a research subject from the years 2010–2011. An archaeozoological study established that the meat eaten in Novae had been principally pork and beef supplied by animals at farms directly at the camp and town; less common was mutton and goat. Interestingly, the meat had come mostly from young specimens, as such must have been the consumers’ preference. Further finds of animal bones belonged to species used for transportation: the horse and the donkey, as well as to domestic dogs and cats. Besides, a few bones of wild animals were discovered, mostly of adult specimens: the European hare, the red fox, the wild boar, the roe deer, the red deer, the European bison and the aurochs. Of enormous interest are finds of bones of an adult brown bear and a red deer; the latter’s leg bones feature pathological changes suggesting that the animal was kept captive for a long time, possibly as an attraction of a home garden. Pathological changes in bones of adult cattle and horses indicate that these animals were yoked and harnessed and used for drawing heavy loads2424. Žuravlev O., “O (…) .
Of particular significance in the territory of present-day Bulgaria are our archaeoichthyological studies of the species of fishes eaten in Novae. The most numerous bones are of Cyprinidae; diagnoses of the skeletons have identified the wild common carp and the tench. Besides, numerous remains of the wels catfish have been encountered, as well as some of the northern pike and the sander. The identified remains of Acipenseridae come from the sterlet, the starry sturgeon (sevruga), the Siberian sturgeon, the beluga and the bastard sturgeon. Most of these fishes are anadromous, migrating from the Black Sea up the Danube to spawn; only the sterlet is a freshwater species. The fairly uniform distribution of the anatomical parts evidences that the caught fish were brought whole into the city for cooking. The most common species are freshwater ones, while some are anadromous, which demonstrates that they were caught in the Danube and its local tributaries. The most frequent edible fishes are the wild common carp (weighing up to 20 kg) and the wels catfish (up to as much as 100 kg)2525. Makowiecki D., (…) .
Another subject unique in the studies of Moesia was the osteological identification of species of birds, establishing the occurrence of the chicken, the domestic goose, various wild ducks, the great white pelican and the golden eagle. Particularly intriguing is the discovery of the latter two, inedible species2626. Tajkova S., “Re (…) .
A participant in the excavation season of 2010 was a geologist and petrographer, who studied the masonry mortar used in the erection of the complex of legionary baths, wall plaster and charcoal from this facility2727. Michalska D., S (…) . Analyses of the latter identified several genera of trees: the pine, the alder, the beech, the birch and the oak2828. Michalska D., F (…) . The chemical composition of the lime mortar from the walls and other structures of the baths was also established. The tests included radiocarbon dating of the mortar using the nuclear accelerator of the Adam Mickiewicz University2929. Michalska D., “ (…) .
The scholarly and research team of the International Interdisciplinary Expedition of the Adam Mickiewicz University in Poznań concluded the project “The Large Legionary Baths of Novae (Moesia Inferior), 2nd–4th c.: Architecture, Infrastructure, Lifestyle” in March 2012.
The final interdisciplinary two-volume monograph Biskupstwo w Novae (Moesia Secunda) IV–VI w. Historia — architektura — życie codzienne, published by the Wydawnictwo Poznańskie in 20133030. Biernacki A. B. (…) , and the substantial final monograph The Large Legionary Thermae in Novae (Moesia Inferior) (2nd–4th Centuries A.D.), published by the Wydawnictwo Instytutu Historii of the Adam Mickiewicz University in 2016, constitute volumes IV/1, IV/2 and V of the series Novae. Studies and Materials brought out by the scholarly and research team of the International Interdisciplinary Expedition “Novae” of the Adam Mickiewicz University3131. Biernacki A. B. (…) . Both the Bulgarian expeditions of the National Institute of Archaeology of the Bulgarian Academy of Sciences and the expedition of the University of Warsaw are now continuing their office studies and drawing up their final reports of the architectural complexes discovered during the most recent seasons, including the scamnum tribunorum, the villa extra muros, the valetudinarium and the principia in Novae.
The Bulgarian municipal authorities of Svishtov have initiated a large-scale project of the maintenance and reconstruction of the complexes of the bishopric and the large legionary baths in Novae, financed by the European Union to an amount of more than five million leva (fig. 21, 22). It must be emphasized that the part of the project concerning the bishopric has been prepared based on the complete architectural documentation, plans of the horizontal layout, cross-sections and visualizations of the structures provided by the teams of the expeditions of the Adam Mickiewicz University and the University of Warsaw.

Phot. A.B. Biernacki.

Phot. A. B. Biernacki.
In 2017, following the retirement of Dr A. B. Biernacki, the Rector of the Adam Mickiewicz University of Poznań, Prof. Andrzej Lesicki, Ph.D., D.Sc., appointed Associate Prof. Elena Klenina, Ph.D, D.Sc., the Head of the International Interdisciplinary Expedition “Novae” of the Adam Mickiewicz University (fig. 23).

Prof. E. Klenina, dr A. B. Biernacki and mgr M. Niesobski.
The full version of the article was published in ACTUM ATQUE TRACTATUM (= Klenina E. [ed.], Novae. Studies and Materials, VIII), Poznań, 2022, pp. 9-39.
Hilczerówna Z., Kołkówna S., Nowicka M., Parnicki-Pudełko S., Press L., Rutkowski B., Sułtow B., Majewski K. (ed.), “Sprawozdanie tymczasowe z wykopalisk w Novae w 1960 roku”, Archeologia 12, 1961, pp. 75-170.
Dimitrov D., Čičikova M., Sultov B., “Raskopki v vostočnom sektore Nove v 1961 godu”, in Izvěstija na Archeologičeskija Institut 36 (1963), p. 133-140.
Biernacki A. B., Klenina E., “Novae — na krańcu świata rzymskiego”, in Klenina E. (ed.) Novae. Studies and Materials VII, Wydawnictwo Naukowe Uniwersytetu im. Adama Mickiewicza, Poznań, 2020.
Parnicki-Pudełko S., “Novae — Sektor Zachodni”, The Fortifications in the Western Sector of Novae, Poznań 1990, 103 pp., 51 fig.
Biernacki A. B., Olczak J., Kotecki J., Herbich T., “Rejon forum — odcinek X”, in Parnicki-Pudełko S. (ed.), Novae — Sektor Zachodni 1974. Wyniki badań wykopaliskowych Ekspedycji Archeologicznej UAM, Część I, Poznań, 1978, pp. 195-204.
Parnicki-Pudełko S., “The Episcopal Basilica in Novae. Archaeological Research 1976–1990”, in Mrozewicz L. (ed.), Seria Archeologia 42, Poznań, 1995, 106 pp.
Biernacki A. B., “The Pulpit in the Episcopal Basilica at Novae (Svištov) (An Attempt at a Reconstruction)”, Balcanica Posnaniensia 7, 1995, pp. 315-332.
Matthews K., “Report on the stable isotope analysis of the three fragments from a marble ambo used at Novae”, in Biernacki A. B. (ed.), Novae. Studies and Materials I, Poznań, 1995, pp. 83-85.
Parnicki-Pudełko S., The Fortifications in the Western Sector of Novae, Poznań, 1990; Parnicki-Pudełko S., The Episcopal Basilica in Novae. Archaeological Research 1976-1990, Poznań, 1995.
Biernacki A. B., Medeksza S., “An Attempt at a Spatial Reconstruction of the Columnar Hall in the Episcopal Residence at Novae”, in Biernacki A. B. (ed.), Novae. Studies and Materials I, Poznań, 1995, pp. 9-23; Medeksza S., “Episcopal Bath. Heating Installation. Preliminary Technical and Functional Analysis”, Archeologia 47, 1996, pp. 80-84.
Biernacki A. B. (ed.), Novae. Studies and Materials, I, Poznań, 1995, 97 pp.
Klenina E., “Some remarks about the Roman and the Early Byzantine pottery from Novae (Moesia Inferior)”, in Freeman Ph., Bennett J., Fiema Z., Hoffmann B. (eds), Proceeding of the Limes Congress XVIII (Amman, Jordan, September 2000), BAR International Series 1084 (II), Oxford, 2002, pp. 695-703; Klenina E., “Earthenware of the II–III centuries A.D. from excavation of legionary bath canal in Novae (Moesia Inferior)”, in The Roman and Late Roman City. The International Conference (Veliko Tyrnovo 26–30 July 2000), Sofia, 2002, pp. 410-417; Klenina E., “Столовая и кухонная керамика III–VI вв. н.э. из Нов (Северная Болгария) [Ceramic Tableware and Kitchenware of the 3rd–6th century from Novae (Northern Bulgaria)]”, in Biernacki A. B. (ed.), Novae. Studies and Materials, II, Poznań–Sewastopol, 2006; Klenina E., “Some Aspects of Economic Development of Novae (Moesia Secunda) in the 5th–6th centuries AD”, in Biernacki A. B., Klenina E. Yu., Genčeva E. (eds), Bishopric of Novae (Moesia Secunda), 4th–6th cent. History—Architecture—Daily Life, Volume II, Daily Life [= Biernacki A. B. (ed.), Novae. Studies and Materials IV), Poznań, 2013, pp. 75-116; Klenina E. Ju., “Trade relations of Novae (Moesia II) according to ceramic evidence from an assemblage of the late 5th–early 6th centuries AD”, in Poulou-Papadimitriou N., Nodarou E., Kilikoglou V. (eds), LRCW 4. Late Roman Coarse, Cooking Wares and Amphorae in the Mediterranean, vol. II, British Archaeological Reports, International Series 2616 (II), Oxford, 2014, pp. 931-941; Klenina E. Yu., “Local and Imported Pottery of the 2nd-4th Centuries A.D. in the excavations of the Large Legionary Thermae”, in Biernacki A. B., The Large Legionary Thermae in Novae (Moesia Inferior) (2nd–4th centuries AD) [= Novae. Studies and Materials V], Poznań, 2016, pp. 413-453.
Biernacki A. B., “A Marble Sigma-Shaped Mensa from Novae”, in Bülow G. von, Milčeva A. (Hrgs.), Der Limes an der Unteren Donau von Diokletian bis Heraklios. Vorträge der Internationalen Konferenz Svištov (1.–5. September 1998), Sofia 1999, pp. 75-86.
Biernacki A. B., “The Episcopal Complex in Novae (5th and 6th Cent. A.D.)”, in Biernacki A. B., Czerner R., (eds), Bishopric of Novae (Moesia Secunda), 4th–6th cent. History—Architecture—Daily Life, Volume I, History, Architecture [= Biernacki A. B. (ed.), Novae. Studies and Materials IV/1], Poznań, 2013, pp. 31-54; Czerner R., “Architektura kompleksu budowli biskupstwa w Novae i jej przemiany w czasie”, in Biernacki A. B., Czerner R., Biskupstwo w Novae (Moesia Secunda) IV–VI w.: historia, architektura, życie codzienne, Tom 1, Historia i architektura [= Biernacki A. B. (ed.), Novae. Studies and Materials IV/1], Poznań, 2013, pp. 55-96.
Makowiecki D., Makowiecka M., “Zwierzęce szczątki kostne z zespołu pomieszczeń pomocniczych — ptochotrophium rezydencji biskupiej w Novae (Bułgaria)”, in Biernacki A. B., Gencheva E., Klenina E., Biskupstwo w Novae (Moesia Secunda) IV–VI w.: historia, architektura, życie codzienne, Tom 2, Życie codzienne [= Biernacki A. B. (ed.) “Novae. Studies and Materials” IV/2], Poznań, 2013, pp. 295-305.
Skoczylas J., “Zagadnienie pochodzenia marmurów z Novae”, in Biernacki A. B., Czerner R., Biskupstwo w Novae (Moesia Secunda) IV–VI w.: historia, architektura, życie codzienne, Tom 1, Historia i architektura [= Biernacki A. B. (ed.), Novae. Studies and Materials IV/1], Poznań, 2013, pp. 97-104; Michniewicz J., “Proweniencja marmurowych rzeźb z Novae w świetle badań petrograficznych”, in Biernacki A. B., Czerner R., Biskupstwo w Novae (Moesia Secunda) IV–VI w.:historia, architektura, życie codzienne. Tom 1. Historia i architektura [= Biernacki A. B. (ed.), “Novae. Studies and Materials” IV/1], Poznań 2013, pp. 105-120; Michniewicz J., “Petrografia i proweniencja wapieni stanowiących surowiec skalny rzeźb oraz detali architektonicznych z Novae”, in Biernacki A. B., Czerner R., Biskupstwo w Novae (Moesia Secunda) IV–VI w.: historia, architektura, życie codzienne, Tom 1, Historia i architektura [= Biernacki A. B. (ed.), “Novae. Studies and Materials” IV/1], Poznań, 2013, pp. 143-152.
Ponomarev D., Smirnov V., “Analiz DIK fragmenta kosti iz relikvarija v ‘Maloj’ Basilike episkopskogo kompleksa v Novach”, in Biernacki A. B., Gencheva E., Klenina E., Biskupstwo w Novae (Moesia Secunda) IV–VI w.: historia, architektura, życie codzienne, Tom 2, Życie codzienne [= Biernacki A. B. (ed.) “Novae. Studies and Materials” IV/2], Poznań, 2013, pp. 369-371.
Biernacki A. B., Czerner R., “Biskupstwo w Novae (Moesia Secunda) IV–VI w.: historia, architektura, życie codzienne”, Tom 1, Historia i architektura [= Biernacki A. B. (ed.), “Novae. Studies and Materials” IV/1], Poznań, 2013; Biernacki A. B., Gencheva E., Klenina E., Biskupstwo w Novae (Moesia Secunda) IV–VI w.: historia, architektura, życie codzienne, Tom 2, Życie codzienne [= Biernacki A. B. (ed.) “Novae. Studies and Materials” IV/2], Poznań, 2013.
Biernacki A. B., “The Bishopric of Novae (Moesia Secunda, 4th–6th Cent.): History, Architecture, Daily Life”, in Acta XV Congressus Internationalis Archaeologiae Charistianae, Toleti 8–12.9.2008, Episcopus, Civitas, Territorium, Pars I, Citta de Vaticano, 2013, pp. 895-914; Biernacki A. B., “The Episcopal Complex in Novae (5th and 6th Cent. A.D.)”, in Biernacki A. B., Czerner R. (eds), Bishopric of Novae (Moesia Secunda), 4th–6th cent. History— Architecture—Daily Life, Volume I, History, Architecture [= Biernacki A. B. (ed.), “Novae. Studies and Materials” IV/1], Poznań, 2013, pp. 31-54; Czerner R., “Architektura kompleksu budowli biskupstwa w Novae i jej przemiany w czasie” in Biernacki A. B., Czerner R., Biskupstwo w Novae (Moesia Secunda) IV–VI w.: historia, architektura, życie codzienne, Tom 1, Historia i architektura [= Biernacki A. B. (ed.), “Novae. Studies and Materials” IV/1], Poznań, 2013, pp. 55-96.
Biernacki A. B., “Architecture, Stratigraphy and Remains of Buildings”, in Biernacki A. B., The Large Legionary Thermae in Novae (Moesia Inferior) (2nd–4th centuries AD) [= “Novae. Studies and Materials” V], Poznań, 2016, pp. 11-65.
Biernacki A. B., “Latrines in the Legionary Camp and Early-Byzantine City of Novae (Moesia Inferior / Moesia Secunda)”, in ACTUM ATQUE TRACTATUM [= Klenina E. (ed.) “Novae. Studies and Materials” VIII], Poznań, 2022, pp. 67-94.
Biernacki A. B., “Architecture, Stratigraphy and Remains of Buildings”, in Biernacki A. B., The Large Legionary Thermae in Novae (Moesia Inferior) (2nd–4th centuries AD) [= “Novae. Studies and Materials” V], Poznań, 2016, pp. 11-65; Jasiewicz A., “Legionary Baths in Novae—Stages of the Functioning of the Feature and its Transformations”, in Biernacki A. B., The Large Legionary Thermae in Novae (Moesia Inferior) (2nd–4th centuries AD) [= “Novae. Studies and Materials” V], Poznań, 2016, pp. 87-117.
Žuravlev O., “Osteologiczeski materiali iz Episkopskogo Kompleksa v Novah”, in Biernacki A. B., Gencheva E., Klenina E., Biskupstwo w Novae (Moesia Secunda) IV–VI w.: historia, architektura, życie codzienne, Tom 2, Życie codzienne [= Biernacki A. B. (ed.) “Novae. Studies and Materials” IV/2], Poznań, 2013, pp. 307-367.
Makowiecki D., Iwaszkiewicz M., “Fish Skeletal Remains from Excavations at Novae (1988, 1990, 1993 Seasons)”, Archeologia 46, 1995, pp. 52-53; Zabilska-Kunek M., Makowiecki D., “Short Report on Fish Remains from the Large Legionary Bath in Novae (Bulgaria)”, in ACTUM ATQUE TRACTATUM [= Klenina E. (ed.) “Novae. Studies and Materials” VIII], Poznań, 2022, pp. 149-160.
Tajkova S., “Rezultaty opredelenija kostnych ostatkov ptic, iz raskopek Episkopskovo Kompleksa v Novach”, in Biernacki A. B., Gencheva E., Klenina E., Biskupstwo w Novae (Moesia Secunda) IV–VI w.: historia, architektura, życie codzienne, Tom 2, Życie codzienne [= Biernacki A. B. (ed.) “Novae. Studies and Materials” IV/2], Poznań, 2013, pp. 373-376; Tajkova S., “Bird Remains from the Large Legionary Thermae and Early-Byzantine Ptochotropheum in Novae (Moesia Inferior / Moesia Secunda)”, in ACTUM ATQUE TRACTATUM [= Klenina E. (ed.) “Novae. Studies and Materials” VIII], Poznań, 2022, pp. 161-168.
Michalska D., Szczeszek R., Sułek T., “Mineralogical Characteristic of Mortars from the Large Legionary Bath in Novae”, in Biernacki A. B., The Large Legionary Thermae in Novae (Moesia Inferior) (2nd–4th centuries AD) [= “Novae. Studies and Materials” V], Poznań, 2016, pp. 479-489.
Michalska D., Fabisiak E., “Identification of Wood Taxa for Chosen Samples”, in Biernacki A. B., The Large Legionary Thermae in Novae (Moesia Inferior) (2nd–4th centuries AD) [= “Novae. Studies and Materials” V], Poznań, 2016, pp. 491-492.
Michalska D., “Possibilities and Limitations on Radiocarbon Dating of Mortars from the Thermae Legionis Area”, in Biernacki A. B., The Large Legionary Thermae in Novae (Moesia Inferior) (2nd–4th centuries AD) [= “Novae. Studies and Materials” V], Poznań, 2016, pp. 493-499.
Biernacki A. B., Czerner R., Biskupstwo w Novae (Moesia Secunda) IV–VI w.: historia, architektura, życie codzienne, Tom 1, Historia i architektura [= Biernacki A. B. (ed.), “Novae. Studies and Materials” IV/1], Poznań, 2013; Biernacki A. B., Gencheva E., Klenina E., Biskupstwo w Novae (Moesia Secunda) IV–VI w.: historia, architektura, życie codzienne, Tom 2, Życie codzienne [= Biernacki A. B. (ed.) “Novae. Studies and Materials” IV/2], Poznań, 2013.
Biernacki A. B., The Large Legionary Thermae in Novae (Moesia Inferior) (2nd–4th cent. AD), with participation of Budzyńska M., Gencheva E., Jasiewicz A., Klenina E., Mihajlov S., Różycki Ł., Vladkova P. [the series “Novae, Studies and Materials” V], Wydawnictwo Instytutu Historii UAM, Poznań, 2016, 536 pp.